Search

wussten sie schon...

… dass Howald einmal eine Kupfergießerei besessen hat?

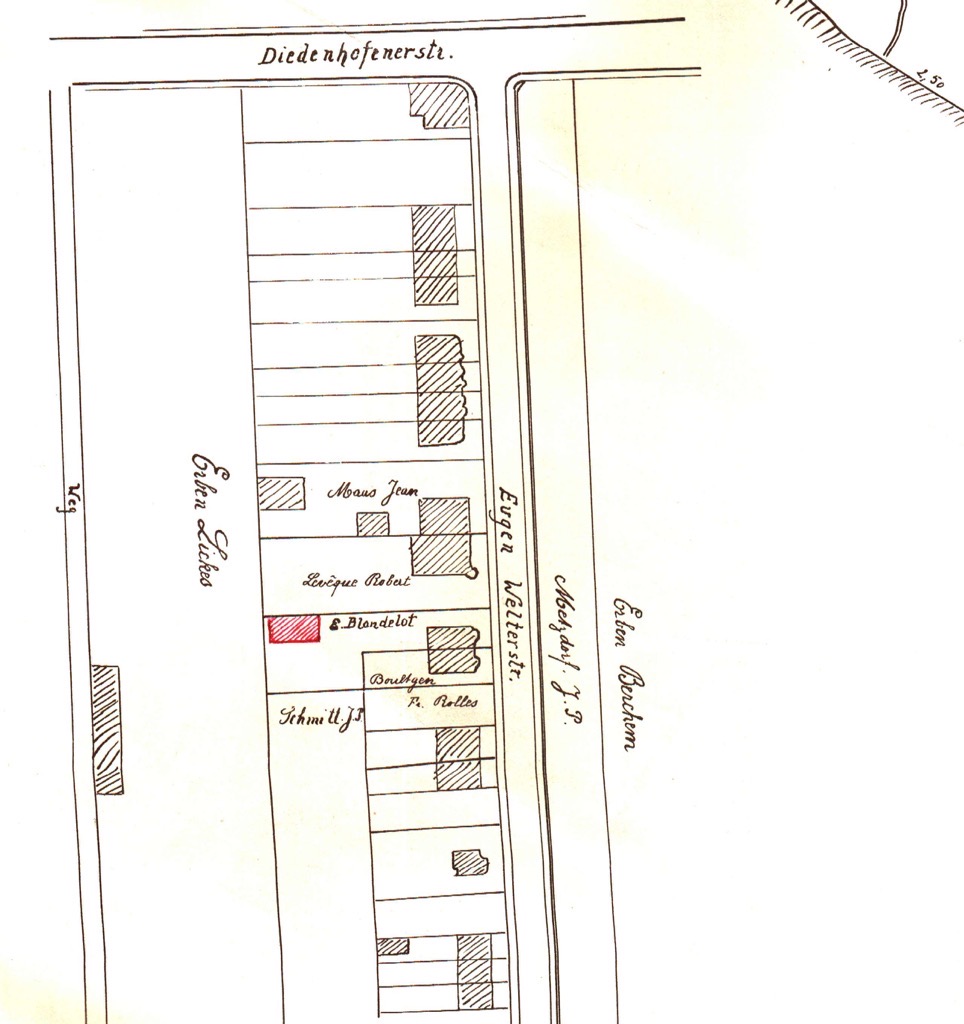
In der Rue Eugène-Welter Nummer 28 existierte Mitte des 20. Jahrhunderts eine Kupfergießerei, die von Emile Blondelot-Modo betrieben wurde. Die Familie Blondelot stammt ursprünglich aus Frankreich und eine Eigenart der Familie scheint es zu sein, dass die erstgeborenen Söhne den Vornamen Emile erhalten.

 

Der Großvater von Emile Blondelot-Modo hieß Emile François Blondelot, war von Beruf Schreiner und wurde am 24.05.1828 in Provins (Département Seine et Marne, Frankreich) geboren, wo der Name Blondelot schon im 17. Jahrhundert zu finden ist. Er ließ sich in Luxemburg nieder und heiratete am 06.07.1857 in Steinsel Barbara Theisen aus Heisdorf. Das Paar lebte abwechselnd in Helmsange, Bereldange und Walferdange, um sich schließlich in Pfaffenthal niederzulassen. 11 Kinder gingen aus dieser Ehe hervor.

 

Der erstgeborene Sohn hieß Emil Peter Blondelot. Er wurde am 29.04.1858 in Helmsange geboren und heiratete am 18.02.1882 in Luxemburg-Stadt Elisabetha Jeitz aus Niederanven. Das Paar blieb sein Leben lang in Pfaffenthal wohnen und bekam dort 7 Kinder. Von Beruf war Emil Peter Blondelot Sandgießer respektive Kupfergießer. Auch zwei seiner Söhne ergriffen diesen Beruf.

 

Der älteste von ihnen hieß ebenfalls Emil und wurde am 13.06.1884 geboren. Nach seiner Lehrzeit in der Kupfergießerei seines Vaters heiratete er am 19.08.1907 in Luxemburg die 19-jährige Margaretha Modo aus Clausen, Tochter eines Schlossers. Am 25.11.1908 richtete er auf dem Grundstück seiner Schwiegereltern eine Kupfergießerei ein. 1914 wurde die Erlaubnis verlängert, aber kurz nach Beantragung eines Gasmotors im Jahre 1916 zog er mit seiner Familie nach Bonneweg, wo er das Haus von J. Schamburg (Itzigerstraße 48) gekauft hatte und im Garten eine Kupfergießerei errichtete. 1933 zog es ihn dann nach Howald, wo er das villenartige Haus des Eisenbahners Folschette erworben hatte und dort (nach anfänglichen Schwierigkeiten mit den Anrainern) ein Atelier einrichtete, in dem er hauptsächlich Maschinenteile für Fabriken herstellte.

 

Während des Krieges wurde die Ortschaft Howald durch 3 Bombenangriffe der Alliierten in Mitleidenschaft gezogen, welche vorab den Rangierbahnhof „Zwickau“ im Visier hatten. Am 9. Mai 1944 morgens gegen 9.30 Uhr traf eine der Bomben das Haus Blondelot, wobei Margaretha Blondelot-Modo ums Leben kam, während ihr Ehemann im stark beschädigten Atelier hinter dem Haus mit dem Schrecken davonkam. Er wohnte dann eine Zeitlang bei Verwandten, ehe Haus und Atelier wieder neu aufgebaut respektive grundlegend restauriert wurden. Zum Gedenken an die Opfer der Bombenangriffe goss Emile Blondelot eine kleine Glocke, die am 07.08.1949 zum ersten Mal anlässlich einer doppelten Fahnenweihe der Pfadfinder aus Howald gezeigt und dann über dem Eingangsportal des damaligen Herz-Jesu-Klosters angebracht wurde. Nach dessen Abriss im Jahre 1998 gelangte sie auf ein Ehrenpodest in dem Rathaus der Gemeinde Hesperingen, wo sie bis 2002 verblieb. Ab dann ziert sie den Eingang des neu errichteten Centre pour Personnes Agées „Beim Klouschter“ Howald.

 

Noch zwei weitere Glocken wurden in der Werkstatt Emile Blondelots in Howald gegossen (eine davon ging an die Pfadfinder nach Neuhäusgen), wobei ihm gerade die künstlerischen Arbeiten, welche er neben seiner reinen Werktätigkeit herstellte, ein besonderes Anliegen waren. 1953 wurde das Haus in der Rue Eugène-Welter dann verkauft. Emile Blondelot wohnte eine Zeitlang bei der Familie seines Sohnes Mathias (Limpertsberg), ehe er dann altersbedingt Quartier in der Kuranstalt „Weilerbach“ bezog, wo er am 19.05.1968 im Alter von 83 Jahren verstarb.

Roland Schumacher

Geschichtsfrënn vun der Gemeng Hesper